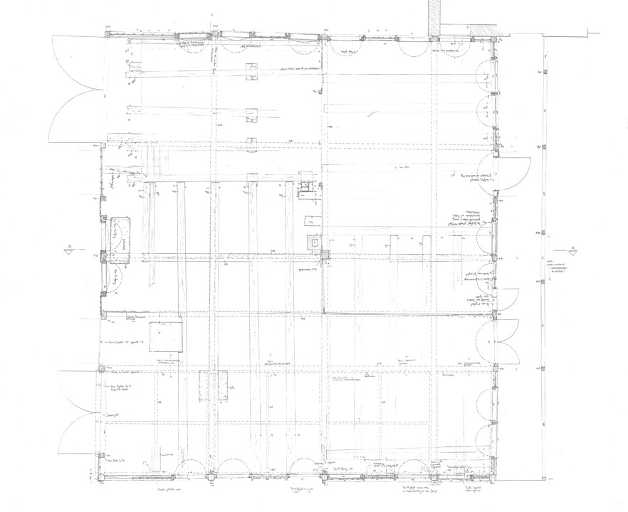
Bauaufnahme, Handzeichnungen und bauhistorische Untersuchung eines Tanzbodens

dietrich-denkmal-tanzboden-passau_zeichnung_01
dietrich-denkmal-tanzboden-passau_zeichnung_01
previous arrowprevious arrow
next arrownext arrow
dietrich-denkmal-tanzboden-passau_zeichnung_01
dietrich-denkmal-tanzboden-passau_zeichnung_02
dietrich-denkmal-tanzboden-passau_zeichnung_03
dietrich-denkmal-tanzboden-passau_zeichnung_04
dietrich-denkmal-tanzboden-passau_zeichnung_05
previous arrow
next arrow

Ehem. Tanzboden in Passau

erbaut Mitte des 19. Jahrhunderts, Saalbau eines ehem. Wirtshauses, Holzkonstruktion mit flachem Zeltdach

Durchgeführte Arbeiten

  • Analytische Bauaufnahme, Handzeichnungen
  • Bauhistorische Untersuchung
  • Fertigstellung 2008